Ναι, καλά διαβάσατε. Ο κατασκευαστής του, Κρις Χέινινγκ, κατάφερε να «κλείσει» στα 26 τετραγωνικά αυτού του σπιτιού τα πάντα – μέχρι και τζακούζι! Πρόκειται μάλιστα για ένα λυόμενο σπίτι. Βέβαια, το συγκεκριμένο σπίτι διαφέρει από τα άλλα και δεν θυμίζει σε τίποτε τα γνωστά λυόμενα που όλοι ξέρουμε. Ο Κρις Χέινινγκ από την Αριζόνα έβαλε όλη του την τέχνη για να αυτό το πολυτελές μικροσκοπικό σπίτι των 36 τετραγωνικών και αναμφισβήτητα τα κατάφερε.
Πώς είναι επιπλωμένο το πολυτελές μικροσκοπικό σπίτι
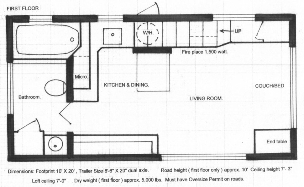
Η κουζίνα είναι πλήρως εξοπλισμένη με τις πιο σύγχρονες εντοιχισμένες ηλεκτρικές συσκευές. Αντίθετα, το μπάνιο διαθέτει ακόμη και τζακούζι. Ο Χέινινγκ εκμεταλλεύτηκε στο έπακρο κάθε ευκαιρία για αποθηκευτικό χώρο. Έτσι, δεν υπάρχει σημείο που να μην έχει αξιοποιήσει. Συνήθως επέλεγε να μετατρέπει κάθε σημείο σε κρυφή ντουλάπα.
Για να επιτύχει να έχει σε έναν τόσο μικρό χώρο και ένα ευρύχωρο σαλόνι, αλλά και μία κρεβατοκάμαρα όπου θα χωρά υπέρδιπλο κρεβάτι, κατασκεύασε έναν εσωτερικό loft. Αυτό βρισκόταν ακριβώς πάνω από την κουζίνα στον οποίο βρίσκεται το υπνοδωμάτιο. Αντίθετα, στη σκάλα που οδηγεί στη σοφίτα-κρεβατοκάμαρα, έχουν ενσωματωθεί αποθηκευτικοί χώροι, αλλά και ηλεκτρικό τζάκι.
Δείτε 10 φωτογραφίες από το πολυτελές μικροσκοπικό σπίτι

Η απόδειξη ότι ένα σπίτι με σωστό σχεδιασμό και μελέτη μπορεί να χωρέσει κυριολεκτικά τα πάντα…








